More on the Armstrong 110# BLR
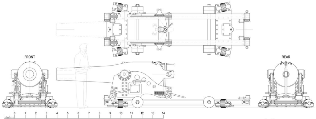
I found a drawing of the carriage and slide for the 110# Armstrong BLR at the National Maritime Museum web site, that's basically what the Warrior's pivots have, and started making a 3D model to go with the Armstrong tube I made.
As usual, there are details I have to figure out in this gun's carriage. Things I can't make out, or are contradicted in various images. The elevation screw arraingement is one such detail.
I also decided to make the breech assembly functional; (watch that video linked on the previous page to see what that means).
I think I nailed down the how the breech-screw works, and managed to model it. It's printing now as I type, so I'll so in a little over an hour. After the test above, I decided to make the threads coarser so they should work right off the printer, or when printed in a smaller scale.
They were too fine at scale and if the gun was printed smaller the 1:36, probably wouldn't work. Getting the matching set of threads inside the breech meant making a new breech from scratch was the easiest approach. If you watched that video, right off you see the part with the
pawn-shop balls spins, and is used like a hammer to tighten or loosen the breech-screw. That feature will be functional now, though at scales like 1:72 or 1:96 maybe not - we'll see if someone tries it.
The carriage and slide got more details; things like shackles, rings, thimbles, some planks in the slide that still need work, an impression of rollers on the bottom of the slide, etc. There's more, and the gun gets more detail yet, front and rear sight mounts, etc.
I printed the breech-screw parts to see if it would work. I had to drill out the keeper-pin holes, and the breech screw itself filled in where it was supposed to be hollow. The inertia-balls on the lever were a bit malformed, but it was all servicable for testing, at least.
Then I printed the gun, which came out perfectly, and the coarser threads functioned flawlessly. Lastly I printed the carriage and slide. The carriage came out right, but gremlins got in and chewed on a coner of the slide. Lastly a made a separate breech-screw with the lever attached for printing at smaller scales, because the separate lever isn't gonna be fuctional at 1:72 or 1:96 scale! It's all posted at Thingiverse for anyone interested.
Armstrong 40# BLR
As if that wasn't enough, I started on another Armstrong breech-loading-rifle!
Well, that went quickly. Having made the 110# BLR, making the 40# BLR was pretty simple. It's already posted on Thingiverse, and printing as I type this because, why not?
Beside's these two guns, Warrior's gun deck battery consisted of 68 pounder smoothbores on 2-truck carriages and several more 110 pound Armstrong BLRs on similar carriages. Making these is mostly about those carriages, as I already have the 110# gun made,
and the 68# tube only took a few minutes.
An Iron Marsilly
While looking for more data for the Warrior carriages, I kept finding photos of IX inch Dahlgrens on iron Marsilly type carriages. So, I finally put one together.
As usual, I couldn't find measurements or drawing, well I find one measured drawing, but it was either for some other carriage, of the person made it all up. I found one drawing of the sides and front by someone that built a model from steel, and a few photos of an
existing gun on this carriage, from which I pretty much eyeballed the details.
Back to the Iron 11 inch Pivot
Always searching for data, I very often run into information about that thing while looking for this thing. So among images of the Iron Marsilly I came across a photo of the iron carriage of an 11 inch Dahlgren.
That image got my mind onto that gun, again, and I eventually found the 1875 Navy Ordnance and Gunnery Manual on Google Books. It's a pretty poor scan, but I found some use in it, the pages below in paticular to this gun:
At the least these images not only helped correct a source problem I had, (explained below), but helped me see things in photos I hadn't noticed; the compressor, for example:
I had starting building this model from a drawing I had found, on Deviant Art, but since found that drawing was based on a movie prop from 20,000 Leagues Under the Sea. While it's a pretty impressive image at first glane, it doesn't match any real gun that actually existed.
It also purports to be a IX inch gun, for which I can find no evidence of an iron pivot carriage.

Constellation got her XI inch Dahlgren (and 100pd Parrott) sometime between her 1871 refit and the 1879 phto showing the expanded gunports. I'm assuming she would have the earliest version of the iron pivot carriage, and not the late 1870s to 1880s version, with cranks,
wheels, dampers, etc. The ship also got IX inch Dahlgrens which I'm beginning to think may have been on iron carriages as well, I'm still looking into that.
So, I basically rebuilt my 3D model with this new data, and though there's more adjustments to make, and details to add, Here's the best image of the gun I'm working toward, before it was updated with dampeners, gears, and removal of the old compressors.
The '75 manual also included a drawing of a later version of the Iron Marsilly which was modified with a side hole filled in, and a different elevation set-up. As these were modified from the earlier version, I had to edit my model which turned out to be a little off in size and shape.
The new question now, is did Constellation's IX Dahlgren's have wood or iron carriages during her time as a training ship?